Skip links

Car Lift​

Vertical Transport for Vehicles
in Multi-Level Buildings

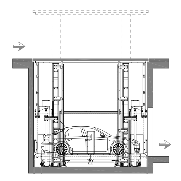
Car elevators, also known as freight elevators, are a powerful solution for transporting vehicles between parking levels—especially in buildings where space is limited or ramp access is impractical. Specifically engineered to handle the weight of standard and commercial vehicles, car elevators are commonly used in residential towers, commercial buildings, and valet-operated garages.

By eliminating the need for long ramps, car elevators help maximize parking capacity, improve internal flow, and simplify access to underground or upper-level parking areas.

Download Datasheet 1

Download Datasheet 2

Explore
Drag